Projekte
Nachbarschaftlich Wohnen im „Haus für ALLE“
In der Detmolder Nordstadt – in ruhiger Wohnlage – steht uns ein modernisierter Gebäudekomplex mit ca. 1400 m² Nutzfläche zur Verfügung.
Das bestehende, bis 2013 noch genutzte Büro- und Gewerbegebäude, mit angebautem Wohnhaus, mit altem Baumbestand und gewachsenen Gärten, steht mitten im Detmolder Nordviertel auf dem Eckgrundstück Stettiner Straße/Dresdner Straße. Auf Grundlage einer umfassenden Bestandsaufnahme und eines flexiblen Nutzungs- und Grundrisskonzepts konnten Nutzungsalternativen und die individuellen Bedürfnisse und Wünsche der zukünftigen Bewohner noch in die Gesamtplanung einfließen. Geringe Gebäudetiefen und stützenfreie Grundrisse (2-geschossiges Hauptgebäude) ermöglichten eine flexible Grundriss-Planung und gut belichtete Wohn- und Aufenthaltsräume. Mit der fertigen Planung ist die
modernisierungsfähige, massive Bausubstanz ab Frühjahr 2019 neubauwertig umgebaut und erweitert worden.
In der Stettiner und der Dresdener Straße
mit vier Adressen und ebenso vielen Gärten, wird eine nachfragegerechte und zukunftsfähige Mischung verschiedener Wohnformen und quartiersnaher Versorgungsangebote realisiert.
„"Haus für ALLE“ kompakt
Lageplan zum „Haus für ALLE“
- Stettiner Straße 9 a / Appartement-Wohngemeinschaft für 12 Bewohner mit Assistenzbedarf / Betrieb durch die AWO Lippe
- Stettiner Straße 9 / Hausgemeinschaft [+/- 60] mit 10 Wohnungen / Selbstverwaltetes Wohnprojekt / Projektstart (Gruppenfindung und 1. Planungstreffen) Herbst 2017, seit Sommer 2020 fertiggestellt und bezogen
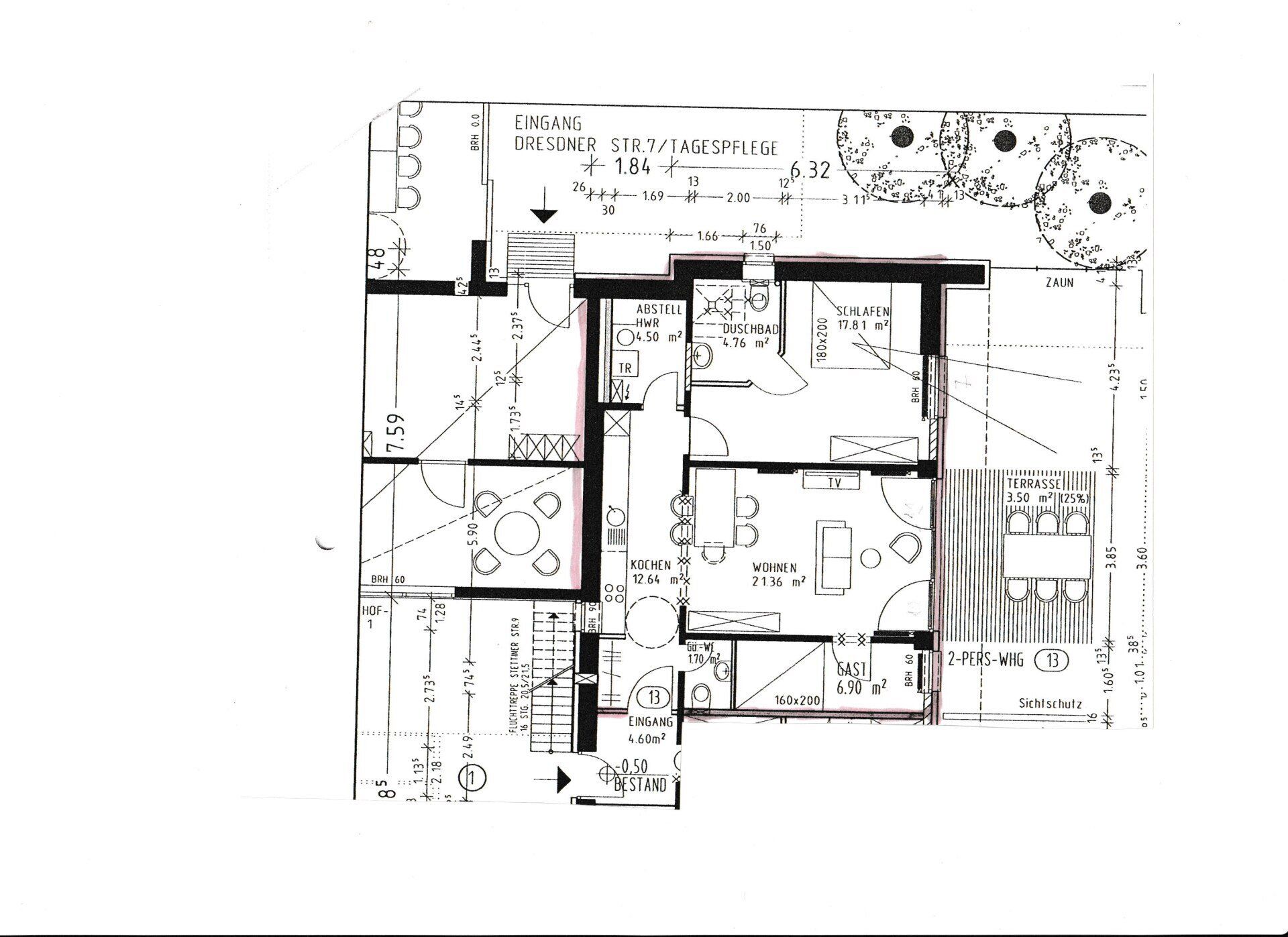
- Dresdner Straße 7 / Tagespflegehaus für 10 Gäste / im ehemaligen EFH / Betrieb durch die AWO Lippe
- Stettiner Straße 9 b /
Hausgemeinschaft [+/- 60] Das zunächst geplante Gemeinschaftshaus mit einem Nachbarschaftsgarten sowie einem Büro fürs Quartiersmanagement, das durch den Verein in Gründung „WIR im Südholzviertel“ und ggf. weitere Träger betrieben werden sollte, war ab Herbst 2017 bis Sommer 2020 zunächst „Bauhütte“ und projektbegleitender Veranstaltungsort (Vernetzung, Kooperationen, Dialog und Beteiligung im Quartier). Als das Konzept scheiterte, weil es keine Unterstützung durch Verwaltung und Politik gab, wurden aus der ehemaligen Fabrikantenvilla zwei zusätzliche Wohnungen. Sie sind bereits vergeben und bilden eine Erweiterung der Hausgemeinschaft [+/- 60] aus der Stettiner Straße 9.







